Appartement / Offre 44-22-002051

  • À vendre
  • Nombre de likes : 10
  • Nombre de vues : 46
149 000 €
44300 Nantes


  • 2 pièces
  • 1 chambre
  • Surface Carrez : 45 m²
  • Cuisine
  • Une salle d'eau
  • Un WC
  • Chauffage Type : individuel

Description

IDEAL PREMIER ACHAT !

*QUARTIER : Idéalement situé à proximité immédiate des commodités, des arrêts de métro et de bus, du parc de la Gaudinière, ainsi que des crèches et écoles. La gare SNCF est accessible en seulement 13 minutes en voiture.

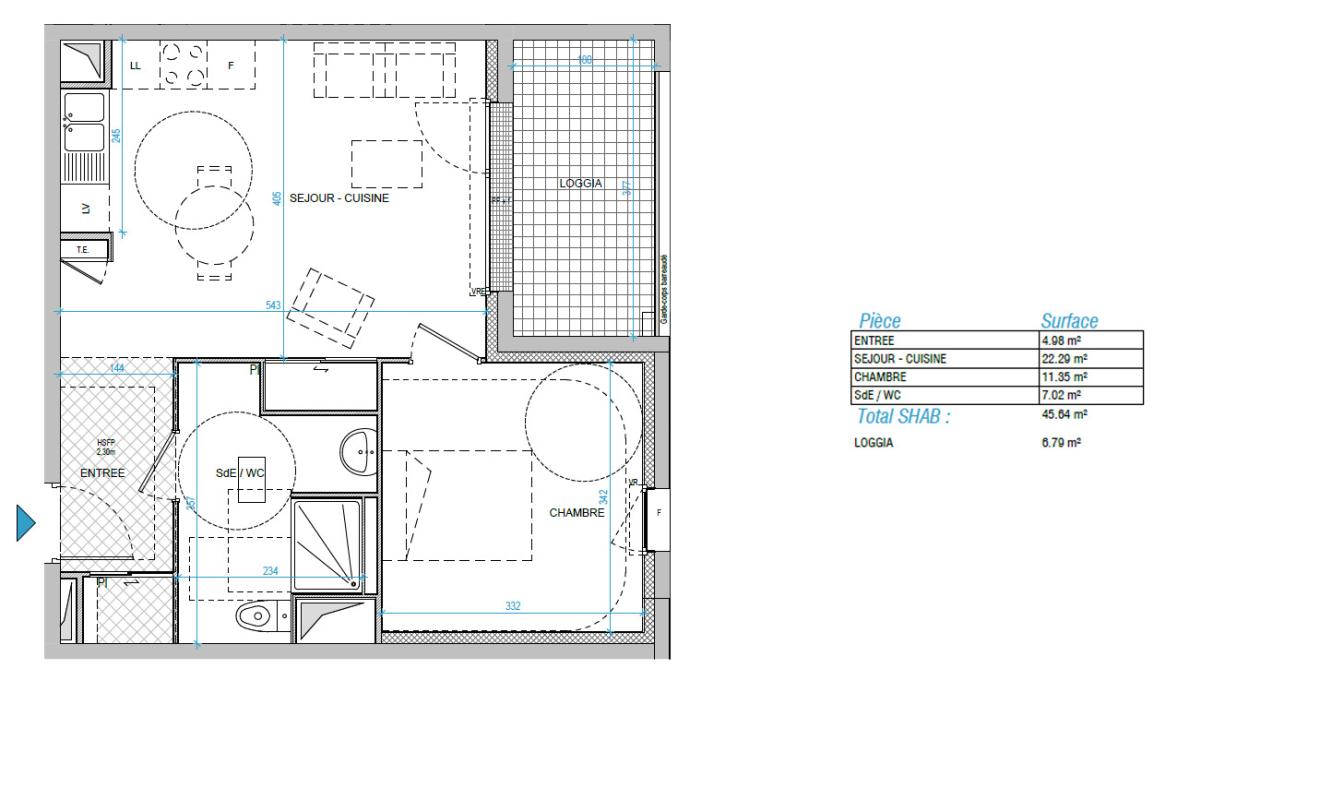
*LOGEMENT : Venez découvrir cet appartement 2 pièces de 45.64m² au rez-de-chaussée, qui se compose d'une entrée, d'un séjour-cuisine de 21.67m², d'une chambre de 12.49m² et d'une salle d'eau avec WC. Une loggia de 8m² et un emplacement de parking complètent ce bien.

Découvrez cet agréable appartement 2 pièces de 45,64 m² situé en rez-de-chaussée. Il se compose d'une entrée, d'un séjour-cuisine de 22,29 m², d'une chambre de 11.35 m² et d'une salle d'eau avec WC. Une loggia de 6 m² et une place de stationnement complètent ce bien.

Profitez d'un cadre de vie paisible et verdoyant, entre la route de Vannes et le boulevard Schuman.

Contactez-nous dès maintenant !

Les informations sur les risques auxquels ce bien est exposé sont disponibles sur le site Géorisques : www. georisques. gouv. fr

En savoir plus sur ce bien

Nous vous rappelons

Votre contact

Mathieu LAPEYRE

24 ter rue du Général de Gaulle
57050 LE BAN-SAINT-MARTIN
  • Téléphone : 06 89 06 46 34

Horaire souhaité :

En envoyant ce formulaire, j’accepte que Quadral collecte et utilise les données personnelles qu'il contient aux seules fins de traitement de ma demande et en accord avec la politique de confidentialité du Groupe.

J'accepte de recevoir des communications de la part des sociétés du Groupe Quadral.