Appartement / Offre 44-22-002051
- 2 pièces
- 1 chambre
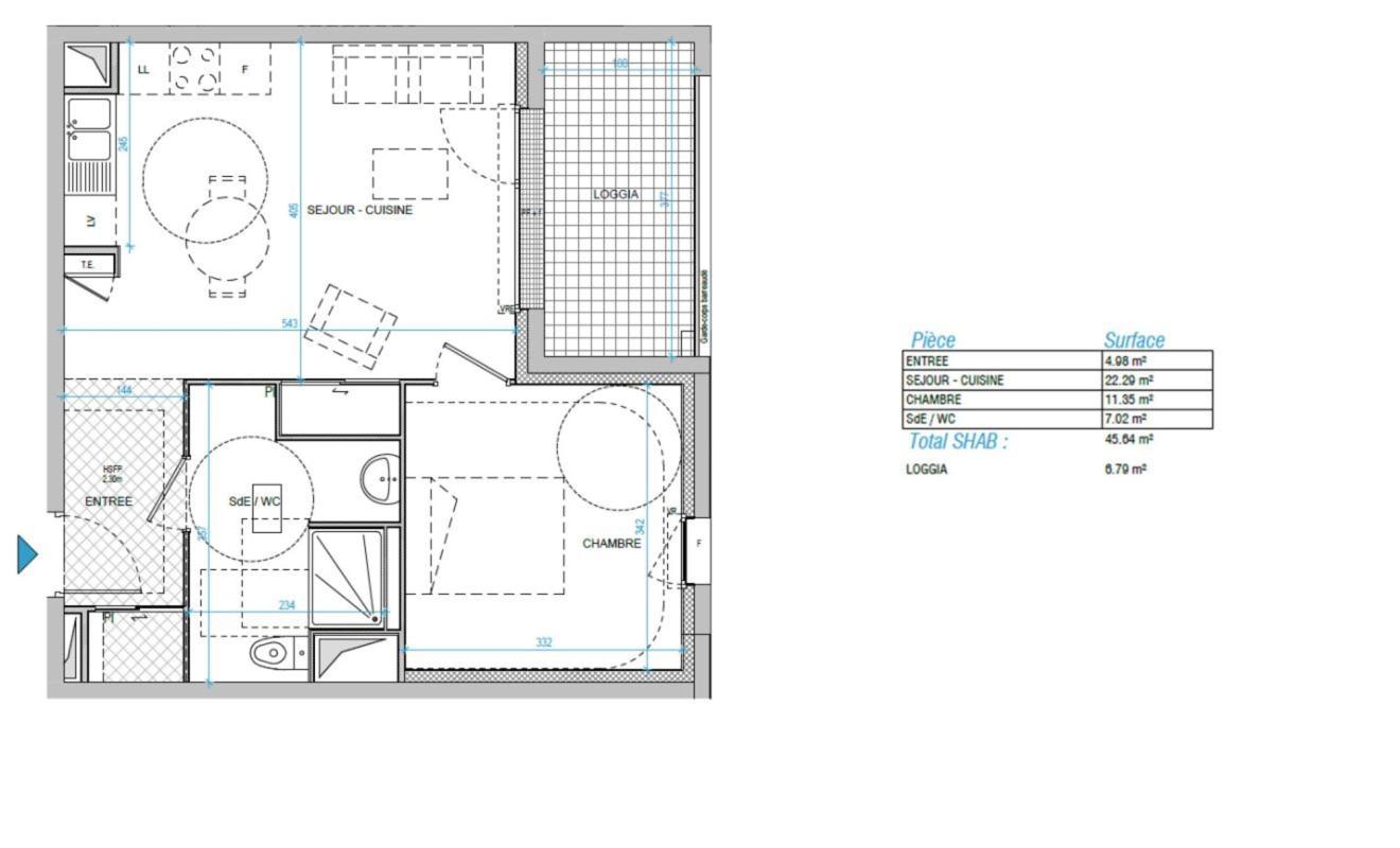
- Surface Carrez : 45 m²
- Cuisine
- Une salle d'eau
- Un WC
- Chauffage Type : individuel
Description
IDEAL PREMIER ACHAT !
*QUARTIER : Idéalement situé à proximité immédiate des commodités, des arrêts de métro et de bus, du parc de la Gaudinière, ainsi que des crèches et écoles. La gare SNCF est accessible en seulement 13 minutes en voiture.
*LOGEMENT : Venez découvrir cet appartement 2 pièces de 45.64m² au rez-de-chaussée, qui se compose d'une entrée, d'un séjour-cuisine de 21.67m², d'une chambre de 12.49m² et d'une salle d'eau avec WC. Une loggia de 8m² et un emplacement de parking complètent ce bien.
Découvrez cet agréable appartement 2 pièces de 45,64 m² situé en rez-de-chaussée. Il se compose d'une entrée, d'un séjour-cuisine de 22,29 m², d'une chambre de 11.35 m² et d'une salle d'eau avec WC. Une loggia de 6 m² et une place de stationnement complètent ce bien.
Profitez d'un cadre de vie paisible et verdoyant, entre la route de Vannes et le boulevard Schuman.
Contactez-nous dès maintenant !
Les informations sur les risques auxquels ce bien est exposé sont disponibles sur le site Géorisques : www. georisques. gouv. fr




