Maison / Offre 54-25-006790_
- 5 pièces
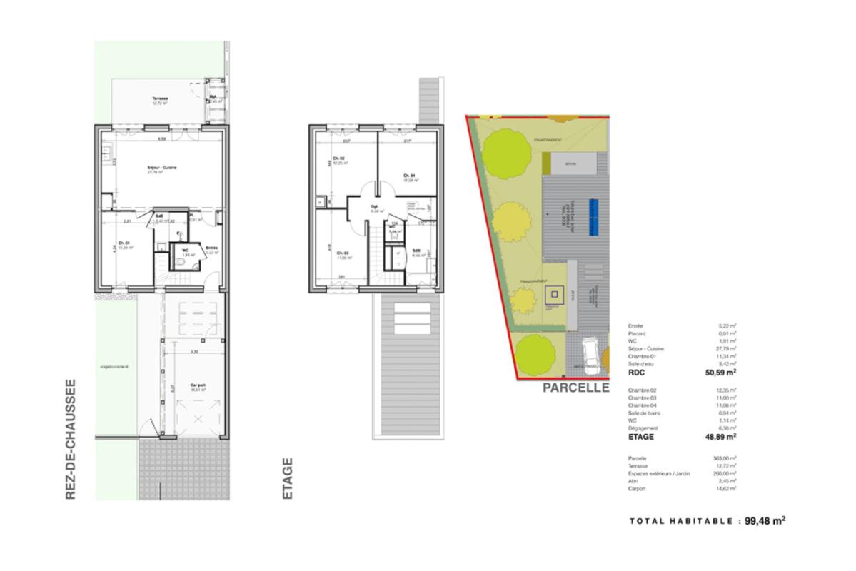
- 4 chambres
- Surface Carrez : 99 m²
- Cuisine
- Une salle d'eau
- Une salle de bain
- 2 WC
- Chauffage Type : individuel
Description
Exclusivité à Seichamps ! DEVENEZ PROPRIÉTAIRE D'UNE MAISON 5 PIÈCES À SEICHAMPS // Jardin privatif // Garage // Quartier calme // *QUARTIER : Situées dans un quartier résidentiel prisé, ces habitations allient confort, modernité et bien-être pour toute la famille. Le secteur offre un cadre de vie privilégié, calme et agréable, tout en restant proche des commodités urbaines. Les écoles, commerces et transports en commun sont facilement accessibles. La proximité de Nancy constitue un atout majeur, offrant de nombreuses opportunités professionnelles, culturelles et de loisirs. *LOGEMENT : Cette maison de 5 pièces de 99.48m², dont 4 chambres de 12,35m², 11,34m², 11.08m² et 11.00m², profite d'un séjour avec cuisine ouverte lumineux de 27.79m² donnant sur une terrasse et un jardin privatif. Cette maison est équipée d'1 salle d'eau et d'une salle de bain et de 2 WC séparés. Elle bénéficie également d'un garage privé. *RESIDENCE LE CLOS DE LA CHEVEE : Nos maisons respectent les dernières normes en matière de performance énergétique. Elles bénéficient d'une isolation thermique optimale, d'un confort acoustique soigné et de solutions écologiques permettant de réduire votre empreinte carbone tout en réalisant des économies d'énergie Contactez-nous dès maintenant !
*La société BATIGERE MAISON FAMILIALE offre les frais de notaire pour un dossier de candidature reçu avant le 10/04/2026, une signature du contrat de location-accession au plus tard le 31/05/2026 et une signature de l'acte authentique au plus tard avant la fin de la première année de période de jouissance.










