Maison / Offre 54-25-006792
- 4 pièces
- 3 chambres
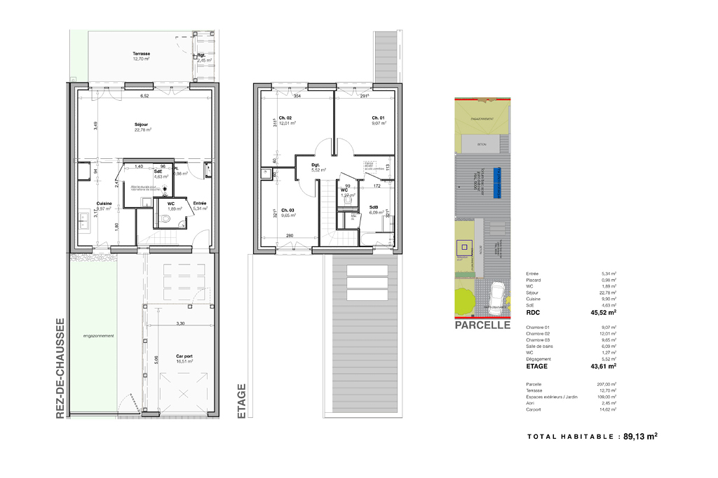
- Surface Carrez : 89 m²
- Cuisine séparée
- Une salle d'eau
- Une salle de bain
- 2 WC
- Avec stationnement garage
- Avec garage
- Chauffage Type : individuel - Énergie : gaz
Description
Exclusivité à Seichamps !
DEVENEZ PROPRIÉTAIRE D'UNE MAISON 4 PIÈCES À SEICHAMPS
// Jardin privatif // Garage // Quartier calme //
*QUARTIER : Situées dans un quartier résidentiel prisé, ces habitations allient confort, modernité et bien-être pour toute la famille. Le secteur offre un cadre de vie privilégié, calme et agréable, tout en restant proche des commodités urbaines. Les écoles, commerces et transports en commun sont facilement accessibles. La proximité de Nancy constitue un atout majeur, offrant de nombreuses opportunités professionnelles, culturelles et de loisirs.
*LOGEMENT : Cette maison de 4 pièces de 89.13m² , dont 3 chambres de 12,01m², 9.65m² et 9.07m², profite d'un séjour lumineux de 22.78m² donnant sur une terrasse et un jardin privatif. Cette maison est équipée d'1 salle d'eau et d'une salle de bain et de 2 WC séparés. Elle bénéficie également d'un garage privé.
*RESIDENCE LE CLOS DE LA CHEVEE : Nos maisons respectent les dernières normes en matière de performance énergétique. Elles bénéficient d'une isolation thermique optimale, d'un confort acoustique soigné et de solutions écologiques permettant de réduire votre empreinte carbone tout en réalisant des économies d'énergie.
Contactez-nous dès maintenant !







