Appartement / Offre 58073837
885 € par mois (charges comprises)
Dont 129 € de provisions sur charges
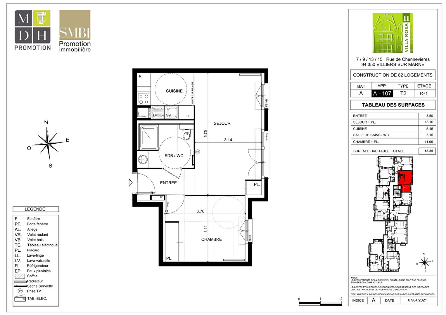
94350 VILLIERS SUR MARNE
Dont 129 € de provisions sur charges
- 2 pièces
- 1 chambre
- Surface Carrez : 44 m²
- DPE : C
- Cuisine AmenageeEquipee
- Une salle de bain
- Un WC
- Avec parking
- Sous-sol
- Chauffage CollectifComptageIndividuel
- Avec balcon
- Interphone
- Ascenseur
- Année de construction : 2023
Description
!! Frais d'agence offerts jusqu'au 15/02/2026 !!
A LOUER dans une résidence récente, un F2 d'une surface habitable de 43.80m² au premier étage.
Proche de toutes commodités et du RER (10 minutes à pied) - Prestations de qualité
Appartement comprenant : une entrée, un séjour avec cuisine aménagée et semi équipée, une chambre, et une salle d'eau avec WC.
Une place de parking en sous sol accompagne ce bien.
Chauffage collectif
Location soumise à conditions (Loi PINEL) - Photos non contractuelles. - Contact : QPGESTLOC.IDF@quadral.fr





