Appartement / Offre 58658213

  • À louer
  • Nombre de likes : 157
  • Nombre de vues : 1 008
1 071,33 € par mois (charges comprises)
Dont 122 € de provisions sur charges
94500 CHAMPIGNY SUR MARNE


  • 3 pièces
  • 2 chambres
  • Surface Carrez : 62 m²
  • Cuisine Amenagée
  • Une salle de bain
  • Un WC
  • Avec parking
  • Chauffage Collectif
  • Avec terrasse
  • Interphone
  • Dernier étage
  • Année de construction : 2025

Description

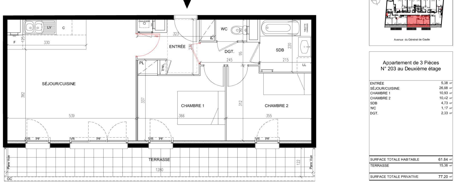
NOUVELLE LIVRAISON CHAMPIGNY SUR MARNE

Venez découvrir ce grand T3 de 61.84 m² situé 2ème étage ,sans ascenseur , d'un immeuble neuf, composé d'une entrée, d'un séjour donnant sur une terrasse de 15.36 m², deux chambres, cuisine aménagée, une salle de bain et WC.

Parking, chauffage individuel au gaz- Photos non contractuelles.
Locations soumise aux conditions loi PINEL.
Les informations sur les risques auxquels ce bien est exposé sont disponibles sur le site Géo risques : "www.georisques.gouv.fr" Visite virtuelle à consulter.

Diagnostics énergétiques

Diagnostique énergétique à venir
Faible émission de GES
≤ 5 A
6 à 10 B
11 à 20 C
14
kgéqCO2/m².an
21 à 35 D
36 à 55 E
56 à 80 F
> 80 G
Forte émission de GES

En savoir plus sur ce bien

Nous vous rappelons

Votre contact

QUADRAL PROPERTY ILE DE FRANCE Paris 9eme - QUADRAL PROPERTY ILE DE FRANCE

41 RUE DE LA CHAUSSEE D ANTIN
75009 PARIS 9EME
  • Téléphone : +33 1 53 32 48 80

Horaire souhaité :

En envoyant ce formulaire, j’accepte que Quadral collecte et utilise les données personnelles qu'il contient aux seules fins de traitement de ma demande et en accord avec la politique de confidentialité du Groupe.

J'accepte de recevoir des communications de la part des sociétés du Groupe Quadral.