Maison / Offre 78-20-005561
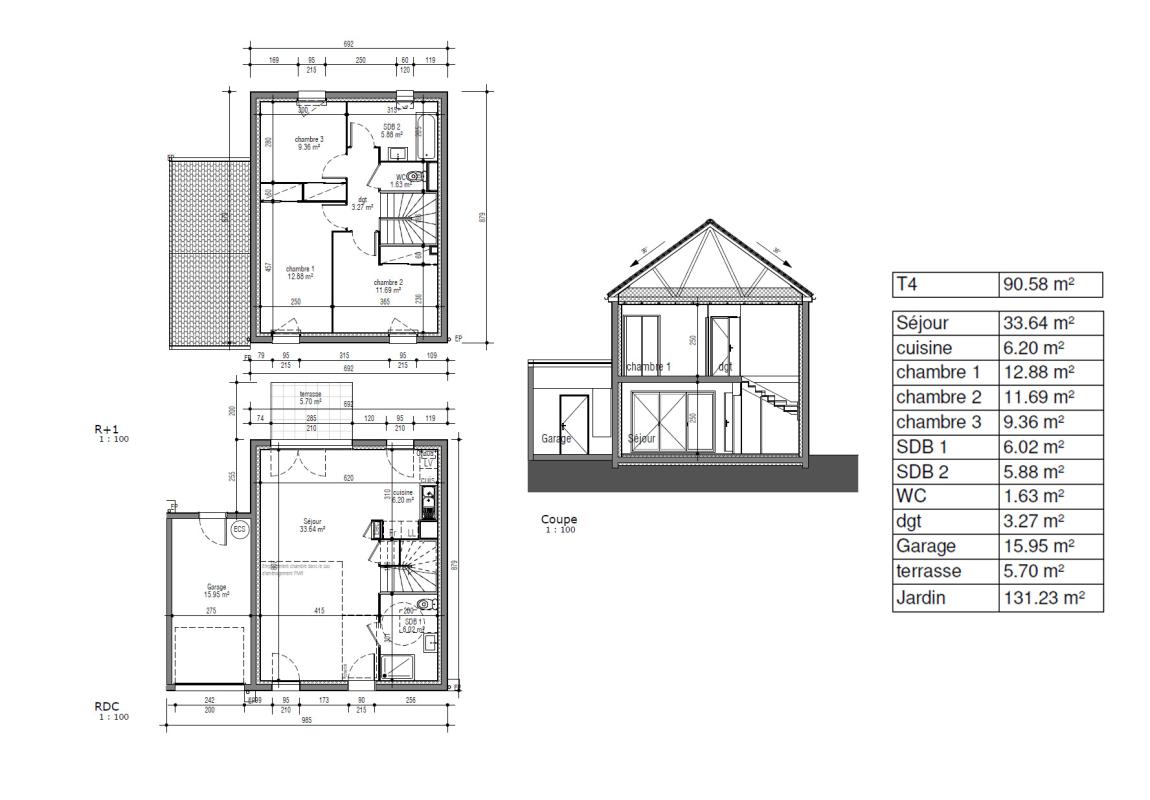
- 4 pièces
- 3 chambres
- Surface Carrez : 90 m²
- coin cuisine
- 2 salles de bain
- 2 WC
- Avec jardin
- Avec stationnement garage
- Avec garage
- Chauffage Type : individuel - Énergie : gaz
- nord-ouest
Description
Dernières opportunités à Rosny-sur-Seine !
*DEVENEZ PROPRIÉTAIRE D'UNE MAISON DE 4 PIÈCES À ROSNY-SUR-SEINE*
// Jardin et terrasse // Garage privé // Environnement calme //
*QUARTIER : Situé dans un environnement calme et résidentiel à Rosny-sur-Seine, ce quartier offre un cadre de vie agréable à proximité des commerces, des écoles et des services du quotidien. Bien desservi, il bénéficie d'un accès rapide à l'autoroute A13 et à la gare, permettant de rejoindre facilement Paris en train, tout en profitant de la proximité des berges de la Seine et d'espaces naturels propices aux promenades et aux activités de plein air.
*LOGEMENT : Cette maison de 4 pièces est répartie sur deux niveaux. Elle dispose de 3 chambres et d'un séjour lumineux avec coin cuisine donnant sur un jardin avec terrasse. Chaque maison dispose également d'un garage fermé.
*LE GRAND JARDIN : Ce programme immobilier neuf est pensé comme un quartier résidentiel, offrant un confort de vie optimal aux familles grâce à des logements spacieux et à leurs espaces verts.
Contactez-nous dès maintenant !




