Appartement / Offre 92-25-003213
- 3 pièces
- 2 chambres
- Surface Carrez : 70 m²
- Cuisine
- Une salle de bain
- Un WC
Description
A vendre en exclusivité un appartement T3 de 70.50 m² au 1er étage avec une cave et parking en sous-sol. Réf. 2450566900.
Découvrez cet appartement à l'emplacement exceptionnel, au cœur du centre-ville de Rueil-Malmaison, à proximité immédiate du Théâtre André Malraux.
Le quartier, à la fois calme et recherché, offre un cadre de vie agréable et dynamique. Vous bénéficierez d'un accès immédiat à l'ensemble des commerces de proximité (supermarchés, boulangeries, restaurants, pharmacie), ainsi qu'à des établissements scolaires réputés, tels que les écoles maternelle et primaire Les Bons Raisins et le collège et lycée Richelieu.
Côté transports, la gare RER A “Rueil-Malmaison” se situe à douze minutes à pied, complétée par de nombreuses lignes de bus (141, 144, 241, 258, 467) permettant de rejoindre aisément La Défense et Paris.
L'appartement séduit par ses beaux volumes, sa luminosité et son agencement particulièrement fonctionnel, répondant parfaitement aux attentes d'un couple ou d'une famille en quête de confort et de qualité de vie, à seulement quelques kilomètres de Paris.
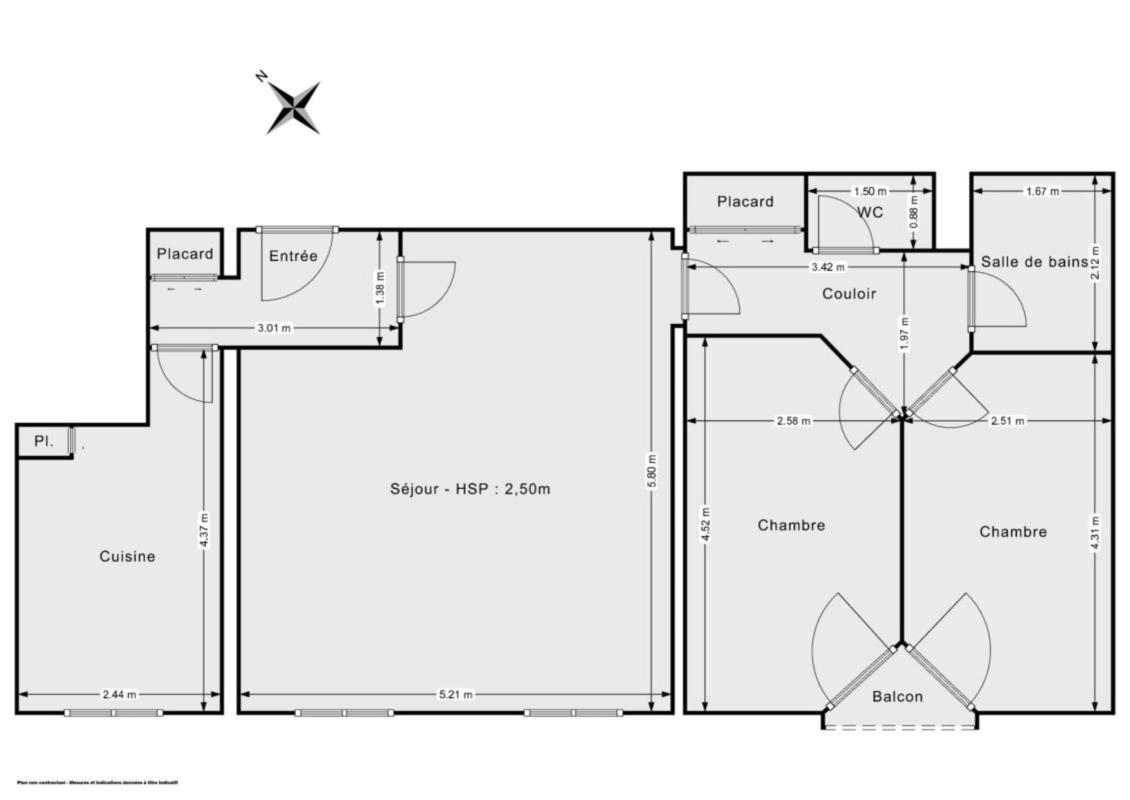
L'appartement s'organise autour d'une entrée avec placard, menant vers une cuisine indépendante. Le vaste séjour lumineux, constitue un espace de vie convivial et élégant.
L'espace nuit se compose de deux chambres donnant sur un petit balcon, d'une salle de bains et d'un WC indépendant, garantissant confort et fonctionnalité au quotidien.
Un bien rare en centre-ville, réunissant emplacement stratégique, volumes généreux et annexes appréciables, idéal pour une résidence principale de standing ou un investissement patrimonial de qualité.
Une visite s'impose pour apprécier pleinement le charme et le potentiel de cet appartement.
DPE : D (194 KWh/m².an) – GES : B (6 kgCO2/m².an).
Montant moyen des dépenses d'énergie pour un usage habituel estimé à 1190 €/an (prix moyens des énergies indexés au 01/01/2021, abonnements compris). Copropriété de 250 lots (dont 101 logements) sans procédure en cours. Charges de copropriété estimées à 1890 €/an. Taxe foncière estimée à 972 €/an.
Prix de vente : 372 602 € (Honoraires à la charge du vendeur : BATIGERE HABITAT). Aucun frais d'agence.
Les informations sur les risques auxquels ce bien est exposé sont disponibles sur le site Géorisques : www.georisques.gouv.fr


















