Appartement / Offre 93-21-005565

  • À vendre
  • Nombre de likes : 390
  • Nombre de vues : 2 103
140 000 €
93600 Aulnay Sous Bois


  • 4 pièces
  • 2 chambres
  • Surface Carrez : 79 m²
  • DPE : D
  • Cuisine séparée
  • Une salle de bain
  • Un WC
  • Chauffage Type : collectif - Énergie : gaz
  • Avec balcon

Description

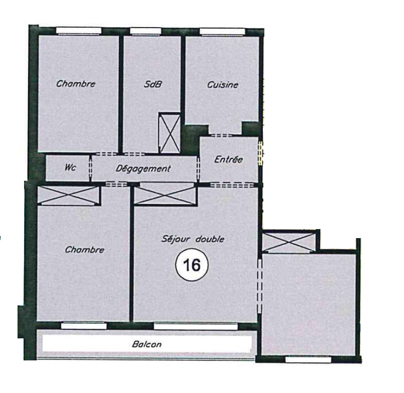
1001 VIES HABITAT VEND à AULNAY SOUS BOIS (93600). Un appartement T4 de 79,18 m² au 7e étage. Réf. 1137030034. Lot n°16.

Au sein d'une résidence calme avec gardien située à proximité du centre commercial des Etangs, de toutes commodités et à 600 mètres de la future ligne 16 du Grand Paris Express, venez découvrir ce lumineux appartement avec vue dégagée.

Ce bien comprend une entrée, une cuisine fermée, un double séjour-salle à manger (ou 3e chambre) donnant accès au balcon, un dégagement avec placards, deux chambres dont une avec placards, une grande salle de bains avec placards et un WC séparé.

Rafraîchissement à prévoir. Chauffage collectif.

Atouts supplémentaires :
- Proche des commerces et des commodités,
- Résidence calme avec gardien,
- Appartement lumineux avec vue dégagée.

DPE : D (222 kWh/m2.an) - GES : D (45 kg CO2/m2.an). Montant des dépenses énergétiques estimé entre 1 330 et 1830 €/an (prix moyen des énergies indexé au 01/01/2023, abonnement compris). Copropriété de 172 lots (dont 72 logements) sans procédure en cours. Charges estimées à 3 948 €/an.

Prix de vente : 140 000 €. Honoraires à la charge du vendeur. Aucun frais d'agence.

Les informations sur les risques auxquels ce bien est exposé sont disponibles sur le site Géorisques : www.georisques.gouv.fr

Diagnostics énergétiques

Logement économe
≤ 50 A
51 à 90 B
91 à 150 C
151 à 230 D
205
kWhEP/m².an
231 à 330 E
331 à 450 F
> 450 G
Logement énergivore
Faible émission de GES
≤ 5 A
6 à 10 B
11 à 20 C
21 à 35 D
36 à 55 E
48
kgéqCO2/m².an
56 à 80 F
> 80 G
Forte émission de GES

En savoir plus sur ce bien

Nous vous rappelons

Votre contact

Nabil MERIMI

24 ter rue du Général de Gaulle
57050 LE BAN-SAINT-MARTIN
  • Téléphone : 06 80 02 52 29

Horaire souhaité :

En envoyant ce formulaire, j’accepte que Quadral collecte et utilise les données personnelles qu'il contient aux seules fins de traitement de ma demande et en accord avec la politique de confidentialité du Groupe.

J'accepte de recevoir des communications de la part des sociétés du Groupe Quadral.